Rumah Strategis Siap Huni Condet Jakarta Timur
Condet, Jakarta Timur
- Rp 750.000.000
Deskripsi dan Spesifikasi
🏡 Rumah 2 Lantai Siap Huni di Condet – Jakarta Timur
💰 Rp 750 Juta (Nego)
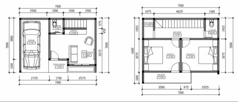
LT 35 m² | LB 70 m² | 2 KT | 2 KM | Carport 1 Mobil
Legalitas AJB • Jet Pump • Listrik 1300W • Bangunan 2025
📍 Dekat Rindam Jaya, PGC Cililitan, RS Pasar Rebo, AEON Tanjung Barat
✅ Unit tinggal 1! Lokasi strategis & akses mudah
📞 Segera hubungi sekarang!
wa.me/6282234193315
💰 Rp 750 Juta (Nego)
LT 35 m² | LB 70 m² | 2 KT | 2 KM | Carport 1 Mobil
Legalitas AJB • Jet Pump • Listrik 1300W • Bangunan 2025
📍 Dekat Rindam Jaya, PGC Cililitan, RS Pasar Rebo, AEON Tanjung Barat
✅ Unit tinggal 1! Lokasi strategis & akses mudah
📞 Segera hubungi sekarang!
wa.me/6282234193315
- Tayang Sejak8 bulan yang lalu
- Luas Tanah35 m2
- Luas Bangunan70 m2
- Kamar Tidur2
- Kamar Mandi2
- SertifikatSHM - Sertifikat Hak Milik
- KondisiBaru
- KelengkapanKosongan
- Jumlah Lantai2
- Menghadap
- Daya Listrik1300 VA
- Parkir1 mobil
- Air Sumur Bor
- Balkon
- One Gate
- Pengamanan
Dilihat 27 kali
Calc. KPR
×
SELENGKAPNYA
Rumah Dijual di Kramat Jati



